208sqm commercial space | Floreasca Market


  • 1 rooms
  • 2 Baths
  • 238 sqm built
Description

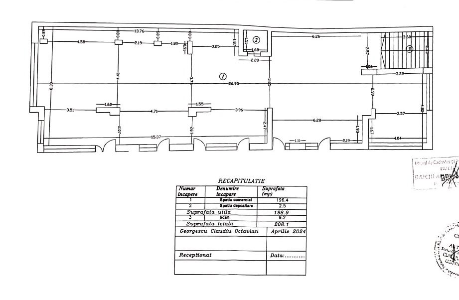
Located in Dorobanti area, near Piata Floreasca this commercial space is located in the Bs of a Bs+Ug+4 building completed in 2024.
It has a total area of 238sqm of which 199sqm usable.
It is composed of open space and 2 bathrooms, this versatile configuration allows for optimal layout, regardless of the specifics of the activity.
In addition to the main entrance, the space has a separate exit.
Considering the area with intense pedestrian traffic, banks, Mega Image, pharmacies, restaurants and cafes, it is suitable for any kind of activity.

Floor Plans
€ 5.900/month
  • 2822305, Dorobanti

    208sqm commercial space | Floreasca Market

Similar Properties


€ 526.000
  • 2 Bedrooms
  • 2 Baths
  • 178 sqm

Located on a quiet street adjacent to Dorobanti Square, this 3-room apartment is located on the 1st floor of a building S+P+6 completed in 2010. The built area is 178sqm of which 144sqm usable. It... Read more

€ 6750/month
  • 6 Bedrooms
  • 4 Baths
  • 435 sqm

On a quiet street in Dorobanti - Capitals named streets, near Paris St. and Victoriei Sq., this 6 bedrooms villa is on 3 levels, SBs+Gf+1. It is entirely refurbished in 2013 with high quality... Read more

€ 2200/month
  • 3 Bedrooms
  • 2 Baths
  • 235 sqm

Placed in Dorobanti area, close to the the Arch de Triumph and Herastrau Park, this triplex unfolds on 3 levels of a building Sb+Gf+1+2+3, completed in 2002. It has a built surface of 235sqm, 65sqm... Read more